Tính toán thiết kế và lựa chọn dung tích bể tách mỡ theo giao trình xử lý nước thải có sẵn
Ngày nay, những công trình lớn từ chung cư, khu công nghiệp, bếp ăn nhà hàng đều có hệ thống xử lý nước thải sơ bộ để loại bỏ các tạp chất có thể ảnh hưởng đến quá trình xử lý nước thải và bể tách mỡ cũng là một trong số đó.
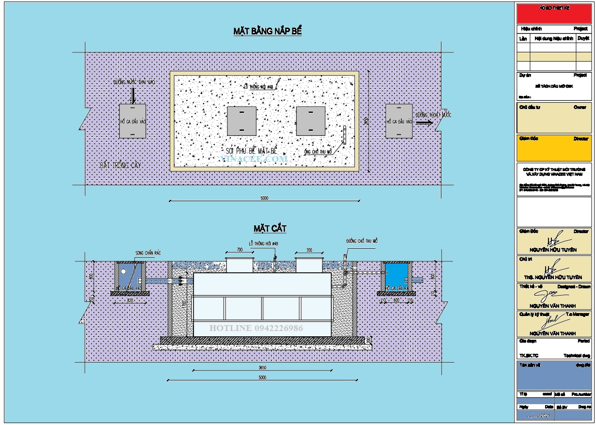
Là một công trình xử lý sơ cấp, bể tách mỡ cần phải được tính toán chi tiết để đáp ứng được nhu cầu của công trình. Thuyết phục được chủ đầu tư về kích thước mà mình tính toán ra được.
Tại sao nên tính toán kích thước bể tách mỡ.
Tính toán là dựa trên những thông số đầu vào biết trước để tìm ra được kích thước, thể tích công trình phù hợp với lại quy mô của hệ thống xử lý.

Đối với bể tách mỡ cần tính toán chi tiết vì đây chỉ là một công trình phụ trợ cho quá trình xử lý nước thải. Nếu tính toán không tốt, bể tách mỡ hoạt động không hiệu quả hoặc bể hoạt động hiệu quả nhưng chi phí đầu tư ban đầu lại cao.
Cần tính toán là để cân đối giữa hiệu quả hoạt động của bể và mức chi phí sản xuất sao cho phù hợp nhất.
Cơ sở để tính toán kích thước bể tách mỡ.
Tính toán là phải có cơ sở để làm, cơ sở ở đây không thể dựa vào kinh nghiệm thực tế được. Kinh nghiệm thực tế chỉ là yếu tố để mình căn chỉnh sao cho phù hợp với lại từng trường hợp cụ thể.
Hiện nay, tôi đang sử dụng công thức tính toán thể tích bể tách mỡ dựa trên các tài liệu sau:
- Tính toán thiết kế các công trình Xử lý nước thải – Thầy Trịnh Xuân Lai.
- Xử lý nước thải công nghiệp – nhà xuất bản xây dựng 2009 – Thầy Trịnh Xuân Lai.
- Thoát nước và xử lý nước thải công nghiệp – Thầy Trần Hiếu Nhuệ.
- Công nghệ và Công trình xử lý nước thải quy mô nhỏ – Thầy Trần Đức Hạ.
- Xử lý nước thải đô thị và công nghiệp – Lâm Minh Triết.
Các thầy là những cây đại thụ trong nghành môi trường, từng giảng dạy ở các trường Đại học lớn như Đại học Xây dựng, Đại học Bách Khoa…. Những công thức này vẫn còn sử dụng tốt, tuy nhiên trong thực tế ngày nay cần áp dụng thêm các yếu tố kinh nghiệm thực tế để tính toán bể tách mỡ một cách chuẩn xác nhất.

Tính toán bể tách mỡ theo công thức có sẵn
Dựa vào những tài liệu trên, tôi đã tổng hợp thành một bảng excel để thuận tiện cho quá trình tính toán. Chỉ cần thay số liệu đầu vào là số suất ăn và tiêu chuẩn thải nước trên mỗi xuất ăn là có thể tính ra được kích thước bể tách mỡ tương đối chính xác rồi.
Q = q*M
Trong đó:
- Q: Lưu lượng nước thải mỡ vào bể trong các lần thải (m3/ngđ)
- M: là số lần bơm lưu lượng chất thải vào bể (ngđ)
- q: Lưu lượng chất thải trung bình vào bể sau mỗi lần (m3)
Dựa vào thể tích bể tính được kết hợp với lại kiến thức thực tế và không gian lắp đặt thực tế chúng tôi có thể dễ dàng đưa ra những tư vấn nhận định phù hợp với từng trường hợp cụ thể.

Có nhiều lần tôi phải đến khảo sát vị trí lắp đặt và thực tế đường ống ra vào mới đưa ra được kích thước và hình dạng bể phù hợp nhất.

Tham khảo thêm bài viết thiết kế bể tách mỡ để nắm rõ hơn về quy trình tư vấn lắp đặt bể tách mỡ.



=======================================================
Công ty CP Kỹ Thuật Môi Trường và Xây Dựng VINACEE Việt Nam
Địa chỉ: Đội 1 xã Tả Thanh Oai, huyện Thanh Trì, TP Hà Nội
VPGD: Tòa nhà Licogi số 25A, Tân Mai, Hoàng Mai, Hà Nội
Showroom 1: 177, Đại La, Hai Bà Trưng, TP Hà Nội
Showroom 2: TT Thương Mại, Tòa LICOGI19, 25 Tân Mai, HM, TP Hà Nội
NPP - Quốc Chính Số 36, Ngõ 264 Phố Định Công Hạ, P Định Công, Q Hoàng Mai, TP HN (0984849454)
Điện thoại: 0243.201.3589
Hotline: Mr Tuyên 0942226986 (zalo), Mr Thanh 0837145888 (zalo)



Viết bình luận