Mẫu thiết kế và bản vẽ lắp đặt chi tiết thiết bị tách dầu cho tổng kho xăng dầu, gara
Thiết bị tách dầu là một loại máy móc hoặc hệ thống dùng để tách dầu, mỡ và các chất béo nhẹ khác ra khỏi nước hoặc không khí. Chức năng chính của thiết bị này là ngăn chặn dầu mỡ làm tắc nghẽn đường ống và gây ô nhiễm môi trường. Cùng VINACEE Việt Nam tìm hiểu về thiết bị này nhé, mẫu thiết kế có ngày cuối bài viết này.
Thiết bị tách dầu (Oil Separator): Khái niệm và công năng
Thiết bị tách dầu có tên tiếng Anh là Oil Separator. Ngoài ra, tùy thuộc vào mục đích sử dụng, có thể có các tên gọi khác như Oil Skimmer (máy vớt dầu), Grease Trap (bể tách mỡ tách dầu mỡ động thực vật), hoặc Oily Water Separator (OWS) (thiết bị tách dầu nước - Tách dầu mỡ khoáng).

Ngày nay, thiết bị tách dầu có vai trò lớn trong xử lý sơ bộ nước thải nhiễm dầu trước khi đấu nối vào trạm xử lý nước thải hoặc hệ thống thoát nước khu vực.
Nguyên lý hoạt động của thiết bị tách dầu
Nguyên lý hoạt động cơ bản của thiết bị tách dầu dựa trên sự khác biệt về trọng lượng riêng giữa dầu và nước. Dầu nhẹ hơn nước nên sẽ nổi lên trên bề mặt, trong khi các chất cặn bã nặng hơn sẽ lắng xuống đáy.

Hầu hết các thiết bị tách dầu đều hoạt động theo quy trình ba bước: Lắng cặn - Tách phân ly dầu - Lọc CxHy
Các quy trình cơ bản trong hoạt động của thiết bị tách dâu
+ Tiếp nhận: Nước thải chứa dầu mỡ được đưa vào thiết bị.
+ Tách hoặc phân ly dầu Dòng nước chảy chậm lại, giúp dầu mỡ nổi lên trên và chất rắn lắng xuống dưới. Một hệ thống vách ngăn hoặc tấm lọc (coalescer) sẽ hỗ trợ quá trình tách dầu hiệu quả hơn.
+ Thu gom/lưu trữ: Dầu được thu gom trên bề mặt bằng các thiết bị chuyên dụng như máy vớt dầu (oil skimmer) hoặc hệ thống xả tự động. Nước đã được xử lý sẽ thoát ra ngoài hoặc đấu nối vào trạm xử lý nước thải đảm bảo các tiêu chuẩn khắt khe khác.
Một số thiết bị tách dầu nước nổi tiếng có phạm vi ứng rộng: Thiết bị tách dầu nước (Oil-Water Separator): Thiết kế để tách hỗn hợp dầu và nước trong nhiều ngành công nghiệp khác nhau
Lựa chọn thiết bị tách dầu cần chú ý những điều gì?
- Lựa chọn nhà cung cấp phù hợp
- Xem xét thiết kế kỹ thuật, yêu cầu quy cách và thẩm mỹ
- Giải pháp lắp đặt, vận hành, bảo trì bảo dưỡng hệ thống
Tham khảo đơn vị thiết kế, thi công lắp đặt thiết bị tách dầu
Thiết bị tách dầu rất lý tưởng cho các ứng dụng tách hidrocacbon tự do, hoặc để sử dụng với các nhũ tương thể yếu. Những thiết bị tách dầu này được sản xuất theo tiêu chuẩn Châu Âu được áp dụng rộng rãi, EN 858 hoặc các chỉ dẫn kỹ thuật hiện hành tại Việt Nam. Đặc điểm kỹ thuật của thiết bị liên quan cụ thể tới kết quả tách dầu từ hỗn hợp nước ở nhiệt độ 20 - 80oC.

Mặt cắt hố bơm

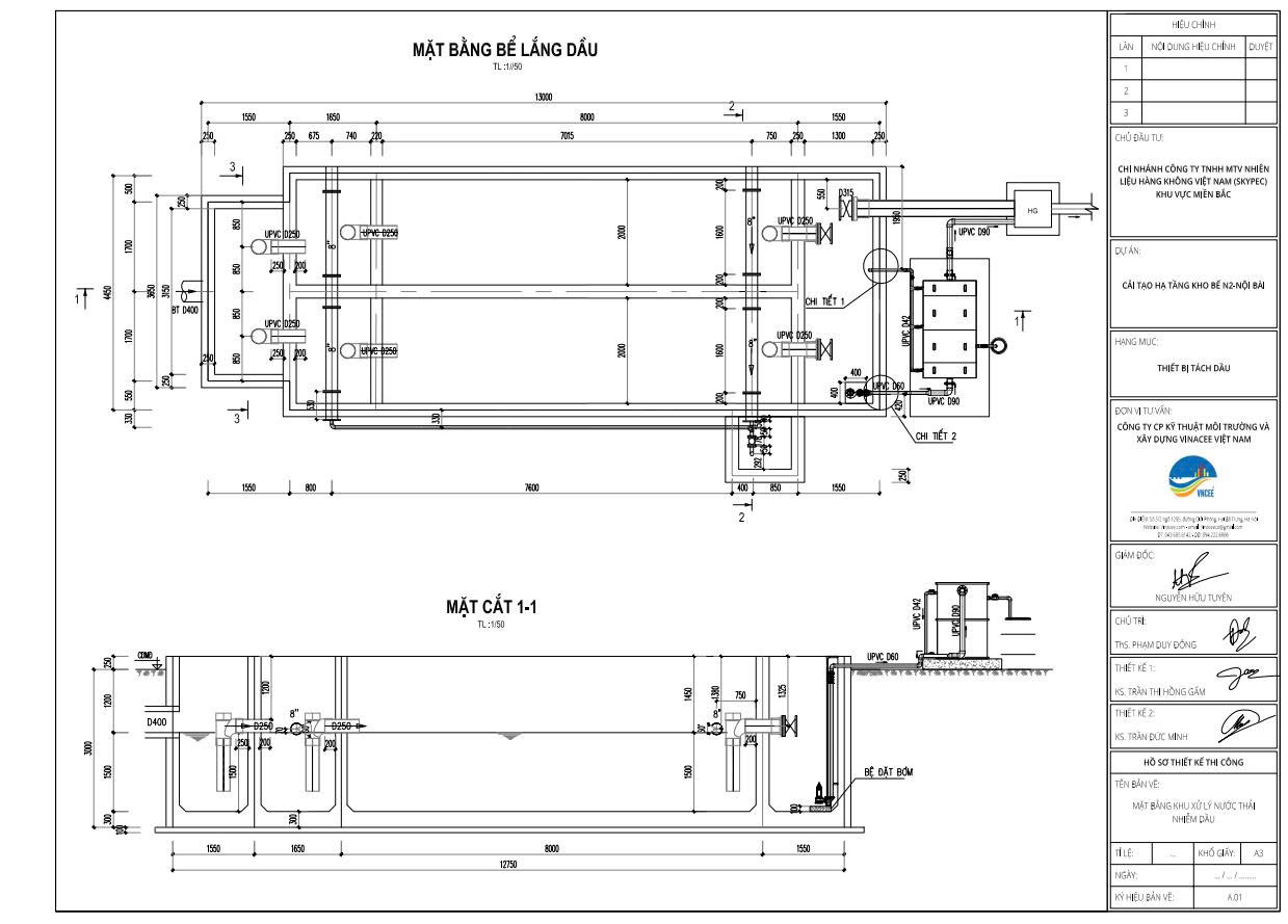
Mặt bằng bố trí thiết bị tách dầu cho Tổng kho xăng dầu
THÔNG TIN LIÊN HỆ ĐỂ BẠN CÓ THỂ THAM KHẢO CÁC MẪU THIẾT KẾ LẮP ĐẶT THIẾT BỊ TÁCH DẦU
Công ty CP Kỹ Thuật Môi Trường và Xây Dựng VINACEE Việt Nam
Địa chỉ: Đội 1 Tả Thanh Oai, Thanh Trì, Hà Nội
VPGD: Tòa nhà Licogi, số 25A, Tân Mai, Hoàng Mai, Hà Nội
Showroom 1: 41 Trường Chinh, Thanh Xuân, Hà Nội
ĐT: 0837145888, hotline: 0942226986



Viết bình luận