Cách tính toán và thiết kế bể tách mỡ công nghiệp, thiết bị tách dầu mỡ (mẫu đơn giản nhất)
Cách tính toán bể tách dầu mỡ ở quy mô công nghiệp - Mẫu đơn giản tham khảo cho khách hàng. VIDEO HƯỚNG DẪN LẮP ĐẶT
Với quy mô công nghiệp, kích thước và thể tích của bể tách dầu phải phù hợp với nhu cầu sử dụng, không được quá thừa hoặc quá thiếu. Vậy cách tính toán bể tách dầu mỡ như thế nào cùng tìm hiểu qua bài viết sau của đội ngũ kỹ thuật chúng tôi (Nguồn tham khảo: Giáo trình XLNT - GS.TS Trình Xuân Lai).
Tính toán lưu lượng vào bể nước thải nước thải: (CHỌN MẪU BỂ TÁCH MỠ CÓ SẴN CHO CHẬU RỬA CÔNG NGHIỆP)
Q = q*M
Trong đó:
- Q: Lưu lượng nước thải mỡ vào bể trong các lần thải (m3/ngđ)
- M: là số lần bơm lưu lượng chất thải vào bể (ngđ)
- q: Lưu lượng chất thải trung bình vào bể sau mỗi lần (m3)
Tính toán tốc độ nổi hạt dầu mỡ (Xem thêm mẫu tính toán theo tiêu chuẩn)
Umin = (981/18) * d^2 * [(pn – phm)/µ]
Trong đó:
- d: Đường kính của hạt mỡ cm ( d = 0,008 đến 0,01 cm), Chọn d = 0,008
- µ: Độ nhớt của dầu
- pn: tỷ trọng của nước thải ( = 1)
- phm: tỷ trọng của dầu mỡ ( = 0,9)
Cách tính toán kích thước bể tách dầu mỡ
+ Tiết diện ngang của bể tách mỡ:
ƒ = Q / Umin
+ Chiều dài công tác của bể:
L = a * (Vtt / Umin) * h
Trong đó:
- L: Chiều dài công tác (m)
- a: là hệ số tính đến chảy rối của dòng nước trong bể thu dầu mỡ
- h: độ sâu bể tách mỡ (m)
- Vtt: Vận tốc dòng nước trong bể (mm/s)
Tính toán bể tách mỡ công nghiệp phụ thuộc vào các yếu tố nào? (NẾU BẠN ĐANG CẦN MỘT SẢN PHẨM HIỆU QUẢ NHẤT, CHẤT LƯỢNG NHẤT ĐƯỢC HƠN 10.000 DỰ ÁN ĐÃ SỬ DỤNG THÌ KHÔNG THỂ BỎ LỠ TẠI ĐÂY - KHUYỄN MÃI KHI ĐẶT HÀNG ONLINE)
Nguồn nước thải cần được xử lý ngay?
Mỗi nguồn chất thải trong công nghiệp đều có những tiêu chuẩn khác nhau, tạo cơ sở tiền đề cho việc tính toán kích thước bể tách mỡ.
+ Tính toán dựa trên số lượng công nhân nhà máy
+ Lượng chất thải từ sản phẩm sản xuất
+ Chất thải từ lưu lượng sử dụng nguyên liệu
Vị trí địa lý - khu vực (Xem thêm các shop tại Hà Nội và Hồ Chí Minh)
Ở khu vực đô thị khác nhau sẽ có yếu tố quyết định đến mức độ thải nước khác nhau, quyết định nhiều đến kích thước bể tách mỡ. Đây là yếu tố quyết định đến tiêu chuẩn thải nước sẽ như thế nào.
Chẳng hạn như khu vực thành phố Hồ Chí Minh, hay các thành phố lớn khác tiêu chuẩn thải nước tính là 180 lít/người, nước thải phục vụ nấu ăn, chứa dầu mỡ 20 - 30 lít/ suất (người).
Bạn cũng có thể tham khảo mô hình tính toán đã được phần mềm hóa tại đây.

Thiết kế số ngăn của bể tách mỡ (XEM THÊM SẢN PHẨM)
Nếu số ngăn của bể cao sẽ giúp giảm bớt kích thước bể khi tính toán. Số ngăn thường được sử dụng hiện nay thường là 2 tới 3 ngăn, tuy nhiên với nhu cầu xử lý mỡ cao thì số ngăn có thể tăng lên 4 ngăn, 5 ngăn (đặc biệt với các thiết bị tách dầu mỡ có tích hợp ngăn chứa dầu, mỡ).

Với số ngăn lớn, bể tách mỡ sẽ tích cực phân ly dầu mỡ ra khỏi nguồn thải, gia tăng hiệu quả sử dụng bể.

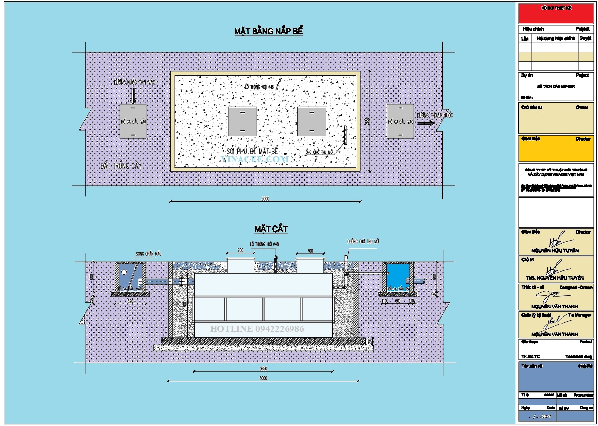
Các mẫu thiết kể bể tách mỡ công nghiệp đặc biệt cho Quý khách tham khảo.





		
Viết bình luận