Bật mí mẫu thiết kế và tính toán bể tách mỡ cho trung tâm thương mại, tòa nhà văn phòng, chung cư
Bể tách mỡ tự động là một loại bể kết hợp giữa bể tách mỡ truyền thống với một số thiết bị giúp tự động hóa quá trình thu gom mỡ thừa hay cảnh báo mức mỡ đầy để hút mỡ.
Trên thị trường thế giới cũng như ở Việt Nam đã cho ra đời rất nhiều các bể tách mỡ tự động khác nhau nhưng không phải bể tách mỡ tự động nào cũng được ứng dụng tốt cho việc thu mỡ; Đặc biệt là phải kể đến đặc tính của từng loại nước thải cũng như tính chất dầu, mỡ, điều kiện tự nhiên, thời tiết (nhiệt độ) theo từng Quốc gia, từng khu vực.

Dầu mỡ có đặc tính nhẹ hơn nước, không tan trong nước và có độ kết dính cao, khi nhiệt độ nóng thì dầu mỡ sẽ lỏng ra và có thể dễ dàng xâm nhập vào đường cống bồn rửa, tuy nhiên khi dầu mỡ ở nhiệt độ lạnh (hoặc nhiều độ thường < 25 độ C) nó sẽ đông cứng lại, gây tắc nghẽn, hư hỏng đường ống thoát nước và gây ra nhiều vấn đề trong quá trình xử lý nước thải chung.

Chưa kể đến các kết quả nghiên cứu khoa học đều cho thấy ô nhiễm dầu mỡ và chất béo gây hậu quả nghiêm trọng đối với hệ sinh thái sông, biển và ô nhiễm môi trường.
Những vấn đề của việc tái sử dụng dầu mỡ thải bỏ không đảm bảo vệ sinh môi trường.
Đây thực sự là một vấn đề nhạy cảm và đáng sợ đang thực sự diễn ra khi nhiều loại dầu mỡ sử dụng trong các cơ sở hề không có nhãn mác, các loại dầu mỡ này được bán tràn lan trên thị trường. Một trong số loại dầu mỡ này được nhập từ Trung Quốc, một trong số đó được tận thu từ mỡ động vật vụn, nát, một trong số đó được tái chế từ dầu mỡ thải thu gom từ chính các cơ sở chế biến thức ăn.

Bể tách mỡ thông minh, sản phẩm thân thiện với môi trường
Đầu tiên người ta thường xử lý nước thải có chứa dầu mỡ qua bể lọc mỡ 3 ngăn với thiết kế đảm bảo và chế tạo theo tiêu chuẩn thoát nước TCVN.

Thiết bị bể lọc mỡ hoạt động dựa trên nguyên lý khác nhau về trọng lượng của nước, mỡ và chất thải rắn, được thiết kế để lọc, tách mỡ, chất béo và chất thải rắn, giữ lại trong hộp bẫy trong khi nước tiếp tục thoát ra khỏi hộp và chảy vào hệ thống thoát.

Bể tách mỡ VINACEE cam kết loại bỏ hơn 95.5% dầu mỡ thừa trong nước thải.
Giải pháp hiệu quả nhất là đảm bảo rằng dầu mỡ được dừng lại trước hệ thống xử lý nước thải và không đi vào hệ thống xử lý nước thải. Sau đó, nó nên được loại bỏ khỏi đường ống cống trước khi đi đến các nhà máy xử lý nước thải. Dầu mỡ sau khi được loại bỏ khỏi nước thải cần có các phương pháp thu gom để xử lý theo CTR.

Hiện nay các phương pháp xử lý dầu mỡ đang được áp dụng phổ biến chủ yếu là thu mua xuất khẩu tái chế sinh học Biodiesel và xử lý bằng các biện pháp như dùng hóa chất tan mỡ, ủ phân compos hay sử dụng các loại vi sinh ăn mỡ.
Cách tính toán bể tách dầu mỡ ở quy mô công nghiệp - Mẫu đơn giản tham khảo cho khách hàng. VIDEO HƯỚNG DẪN LẮP ĐẶT
Với quy mô công nghiệp, kích thước và thể tích của bể tách dầu phải phù hợp với nhu cầu sử dụng, không được quá thừa hoặc quá thiếu. Vậy cách tính toán bể tách dầu mỡ như thế nào cùng tìm hiểu qua bài viết sau của đội ngũ kỹ thuật chúng tôi (Nguồn tham khảo: Giáo trình XLNT - GS.TS Trình Xuân Lai).

Tính toán lưu lượng vào bể nước thải nước thải: (CHỌN MẪU BỂ TÁCH MỠ CÓ SẴN CHO CHẬU RỬA CÔNG NGHIỆP)
Q = q*M
Trong đó:
- Q: Lưu lượng nước thải mỡ vào bể trong các lần thải (m3/ngđ)
- M: là số lần bơm lưu lượng chất thải vào bể (ngđ)
- q: Lưu lượng chất thải trung bình vào bể sau mỗi lần (m3)
Tính toán tốc độ nổi hạt dầu mỡ (Xem thêm mẫu tính toán theo tiêu chuẩn)
Umin = (981/18) * d^2 * [(pn – phm)/µ]
Trong đó:
- d: Đường kính của hạt mỡ cm ( d = 0,008 đến 0,01 cm), Chọn d = 0,008
- µ: Độ nhớt của dầu
- pn: tỷ trọng của nước thải ( = 1)
- phm: tỷ trọng của dầu mỡ ( = 0,9)
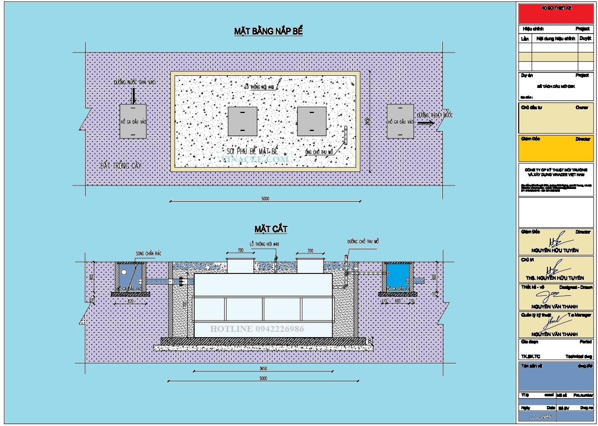
Thiết kế số ngăn của bể tách mỡ tự động.
Nếu số ngăn của bể cao sẽ giúp giảm bớt kích thước bể khi tính toán. Số ngăn thường được sử dụng hiện nay thường là 2 tới 3 ngăn, tuy nhiên với nhu cầu xử lý mỡ cao thì số ngăn có thể tăng lên 4 ngăn, 5 ngăn (đặc biệt với các thiết bị tách dầu mỡ có tích hợp ngăn chứa dầu, mỡ).

Với số ngăn lớn, bể tách mỡ sẽ tích cực phân ly dầu mỡ ra khỏi nguồn thải, gia tăng hiệu quả sử dụng bể. XEM THÊM SẢN PHẨM VÀ NHẬN THÔNG TIN THIẾT KẾ





Viết bình luận