Thiết bị tách dầu công nghiệp (Oil Separator) là hệ thống dùng để tách dầu mỡ và chất béo ra khỏi nước thải, hoạt động dựa trên nguyên lý vật lý (trọng lực và tỷ trọng) hoặc cơ học, rất quan trọng trong xử lý nước thải tại các nhà máy, gara, bếp ăn, kho xăng dầu để tránh tắc nghẽn ống cống và bảo vệ môi trường, với nhiều loại như bể tách mỡ, máy vớt dầu (oil skimmer), hoặc hệ thống hợp khối hiện đại.

Thiết bị tách dầu được phân thành 3 cấp độ tách lọc dầu cơ bản (Tách dầu cặn -> Tách lọc dầu và làm sạch nước - Tách lọc dầu, xử lý nước thải theo tiêu chuẩn quy định).
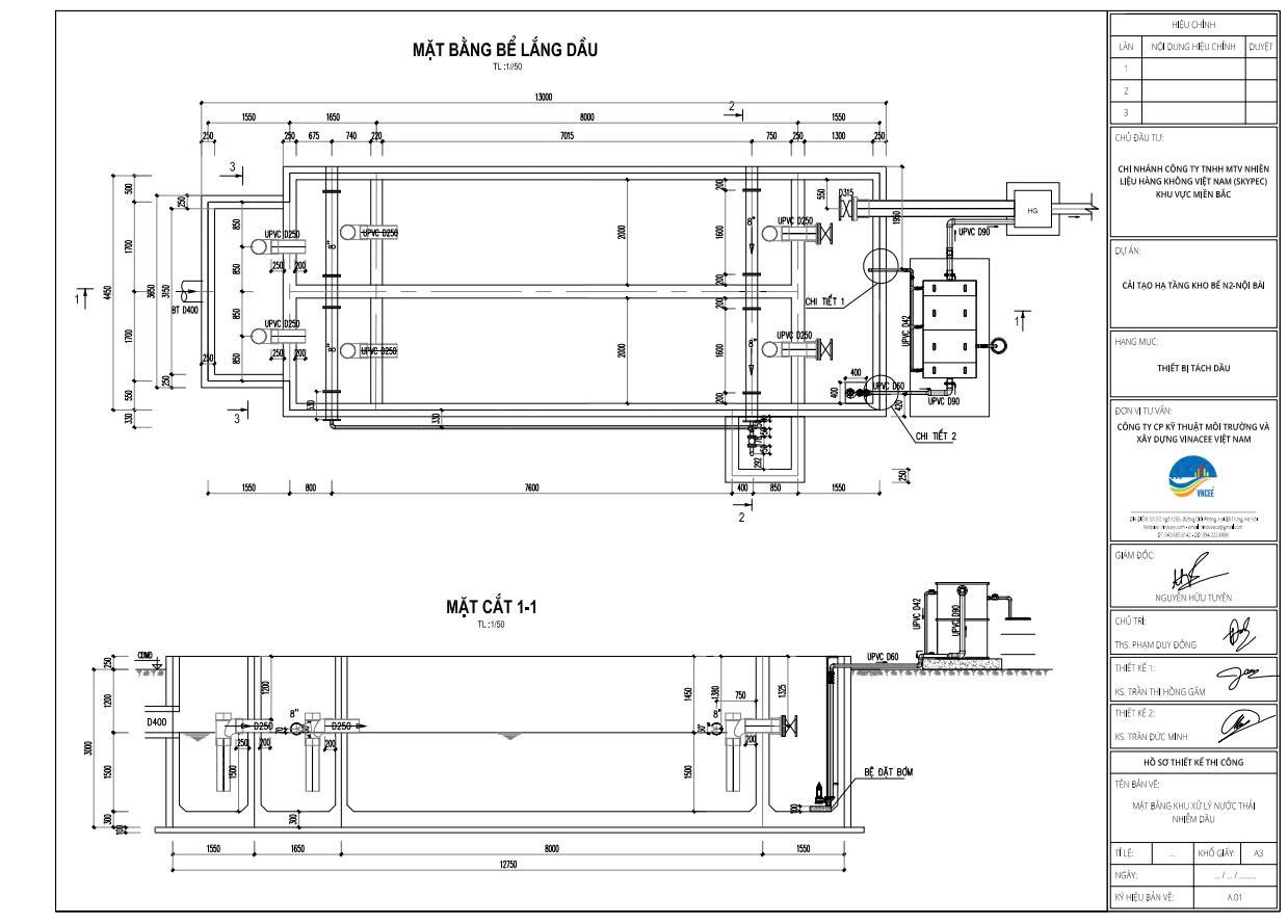
Sơ đồ bố trí thiết bị thường gặp trong thực tế
1. Nguyên lý cơ bản của thiết bị tách dầu công nghiệp
- Tách trọng lực: Dầu mỡ nhẹ hơn nước sẽ nổi lên bề mặt, chất rắn nặng chìm xuống đáy, còn nước được tách ra.
- Tách thô theo cơ chế cơ học: Sử dụng lưới lọc rác, thanh gạt mỡ, hoặc băng tải kỵ nước (belt skimmer) để thu hồi dầu mỡ.
- Gia nhiệt và làm nóng: Một số hệ thống có gia nhiệt để hóa lỏng mỡ, giúp quá trình tách dễ dàng hơn.
2. Các loại định danh thiết bị tách/lọc dầu phổ biến
+ Bể tách dầu công nghiệp/bể tách lọc dầu (Grease Trap/Oil/Grease Separator): Bể có vách ngăn, thường lắp đặt dưới chậu rửa, tách rác, mỡ nổi và bùn lắng.
+ Máy với dầu, thu dầu bể mặt (Oil Skimmer). Thiết bị có thể dùng băng tải, đĩa, hoặc phễu để vớt lớp dầu trên bề mặt nước, phổ biến ở các kho chứa dầu, xưởng cơ khí.
+ Hệ thống tách dầu nước Oily Water Separator – OWS. Đây là một loại thiết bị tách dầu nước có thiết kế phức tạp hơn, tách dầu khoáng và dầu diesel, dùng trong công nghiệp đóng tàu, thủy điện.
+ Thiết bị tách dầu hợp khối: Giải pháp xử lý triệt để nước thải nhiễm dầu tại nguồn, đạt các quy chuẩn môi trường (QCVN).
3. Các ứng dụng phổ biến của thiết bị tách lọc dầu công nghiệp hiện nay
+ Ứng dụng trong lĩnh vực nhà hàng, khách sạn, bếp ăn công nghiệp: Ngăn chặn tắc nghẽn đường ống thoát nước (Bể tách mỡ, bể tách dầu mỡ, thiết bị tách mỡ. Tên gọi phổ biến hơn là gọi phổ biến nhất là Grease Tran (hoặc Grease Interceptor), đôi khi còn gọi là bẫy mỡ (Grease Interceptor), đặc biệt là những loại nhỏ dùng dưới chậu rửa. Các thiết bị tách mỡ tự động hiện đại hơn có thể gọi là Automatic Grease Trap (Thiết bị tách mỡ tự động).
+ Ứng dụng trong xử lý nước thải sơ bộ cho các Gara, xưởng cơ khí, nhà máy đóng tàu: Xử lý nước thải có dầu mỡ, dầu DO. Nước thải từ gara chảy vào ngăn đầu tiên, một giỏ lọc hoặc lưới lọc sẽ giữ lại các vật chất rắn lớn như cát, sỏi, rác thải, thực phẩm thừa... để tránh gây tắc nghẽn đường ống và ảnh hưởng đến các ngăn sau. Nước thải có dầu mỡ chảy sang ngăn tách lọc chính. Do dầu mỡ nhẹ hơn nước, chúng sẽ từ từ nổi lên bề mặt tạo thành một lớp váng dầu. Các cặn bẩn còn lại nặng hơn sẽ chìm xuống đáy bể. Bể thường có các tấm vách ngăn và lưới lọc dầu để giữ lại dầu mỡ hiệu quả hơn, tách chúng ra khỏi dòng nước.
+ Kho xăng dầu, trạm xăng: Xử lý sự cố tràn dầu hoặc nước thải nhiễm dầu.
+ Nhà máy xử lý nước thải đô thị: Loại bỏ dầu mỡ khỏi hệ thống thoát nước chung.
Để mua thiết bị tách dầu hiệu quả, bạn cần xác định nhu cầu (dung tích), ưu tiên chất liệu bền bỉ, kiểm tra thông số kỹ thuật, tính năng lọc và dễ dàng vệ sinh, đồng thời tìm hiểu đánh giá, nhận xét từ người dùng trước khi chọn thương hiệu uy tín có giá hợp lý để đảm bảo hiệu suất cao, tuổi thọ dài. Bạn có thể liên hệ Hotline 0982309689 để được hỗ trợ hoặc liên hệ VINACEE Việt nam

===========================================================================
CÔNG TY CP KỸ THUẬT MÔI TRƯỜNG VÀ XÂY DỰNG VINACEE VIỆT NAM
VPGD: Tầng 2, Tòa nhà LICOGI số 25A, Tân Mai, Hoàng Mai, Hà Nội
Điện thoại: 0243 2013589/Hotline: 0819886989 (Mr Tuyên)
E-mail: vinaceeco@gmail.com/ Website: thietbitachdau.vn





